Desde 475.000 €
Ref. 06074371
Promoción de vivienda en venta en C. Diamante, 12 en la provincia de Málaga
Mijas,
 Málaga
Inmuebles disponibles en esta promoción
Notas
Añade una nota a este inmueble...
Nota actualizada el a las
Descripción
Promoción de viviendas en Mijas, Málaga. ULTIMA VIVIENDA A LA VENTA
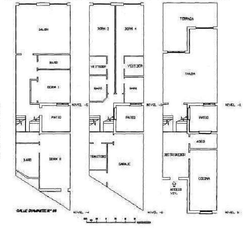
Casa adosada de 4 plantas con 2 salones, cocina, 4 habitaciones (3 de ellas con baño y vestidor incorporados), 4 baños y 1 aseo. Dispone de garaje y jardín privativo. La urbanización cuenta con jardines, pista de pádel y piscina comunitaria.
Promoción ubicada en una zona residencial, cerca de la carretera principal AP-7. A 3,4km de la Playa de la Butibamba, próximo a superficies comerciales, restaurantes, hoteles y zonas verdes.
Descargas
Que no te lo quiten
Visto por 557 personas este mes.
Sé uno de los primeros en contactar.
Guardado como favorito por 4 personas.
Municipio: mijas
Provincia: Málaga
N.º de habitantes: 77.769
Superficie: 149,03 km2
Mijas es un municipio de la Provincia de Málaga, situado a la Costa del Sol. Se concentra en tres núcleos urbanos, Mijas Pueblo, Las Lagunas y La Cala, y es el tercer municipio en número de habitantes de la provincia. Era un municipio que se dedicaba a la agricultura pero a partir de los años 50 sufrió un crecimiento urbanístico por el aumento del turismo, consolidándose actualmente como uno de los principales centros turísticos de Andalucía por la belleza de su arquitectura y sus playas.
- Habitantes: 77.769
- Número de hogares: 51.302
- Edad media de las personas: 38 años
- % extranjeros: 29%
- Nivel medio de estudios: Secundaria
- % dedicadas a segunda residencia: 28%
- Nº de hoteles por cada 1.000 habitantes residentes: 0,5
- Número de farmacias: 41
- Número de escuelas de primaria: 23
- Número de escuelas de secundaria: 9
- Número de estaciones ferrocarril: 1
Promoción de vivienda en venta en C. Diamante, 12 en la provincia de Málaga
Desde 475.000 €
Ref. 06074371
Solicitud enviada
Recibirás un email con los datos de contacto de tu asesor para que puedas agendar una visita al inmueble.
Por favor, si no te llega, revisa las bandejas de SPAM y promociones de tu correo.
Nos gustaría conocer tus preferencias.
Inmueble de promoción conjunta
Cuidado, estás dejando tu petición de información en una promoción formada por más de un activo, revisa la ficha de este producto antes de solicitar información.
Inmueble tipología Obra Parada y en promoción conjunta
Importante: estás dejando tu petición de información sobre una estructura pendiente de finalizar que se comercializa completa y destinada a perfil inversor / promotor. Es una promoción formada por más de un activo, revisa la ficha de este producto antes de solicitar información.
Inmueble tipología Obra Parada
Importante: estás dejando tu petición de información sobre una estructura pendiente de finalizar que se comercializa completa y destinada a perfil inversor / promotor.
Vivienda sin posesión
No hay posibilidad de visitar este inmueble ni de financiarlo.
¿Confirmas que estás interesado en esta tipología de activos destinados a público inversor?
Inmueble proindiviso
Importante: este activo es un proindiviso, cuya propiedad corresponde a varias personas, cada una de las cuales ostentará únicamente un porcentaje determinado sobre la propiedad del inmueble.
¿Confirmas que estás interesado en esta tipología de activos?
¡Gracias por contactar!
Recibirás un email con los datos de contacto de tu asesor para que puedas agendar una visita al inmueble.
Por favor, si no te llega, revisa las bandejas de SPAM y promociones de tu correo.
Propietario del inmueble
Actualizado el 14/01/2026
Términos y condiciones
La información contenida en esta página web está sujeta a actualizaciones sin previo aviso, por lo cual se debe conformar en cada caso a través del 942 049 000. Los precios no incluyen impuestos y gastos a cargo del comprador. Los productos anunciados pueden estar en trámite de inscripción en el Registro de la Propiedad.
Toda la información referida en el R.D. 515/1989, de 21 de abril, sobre protección de los consumidores en cuanto a la información a suministrar en la compraventa y arrendamiento de viviendas, la normativa autonómica complementaria, el R.D. 390/2021, de 1 junio, sobre certificación energética de los edificios, y la demás legislación aplicable se encuentra a disposición de los usuarios en nuestras oficinas en Avenida de Burgos 12, 28036 Madrid. Todos los productos anunciados en esta web los comercializa Servihabitat.
Datos del propietario y comercializador
Inmueble propiedad de Coral Homes, S.L., sociedad con domicilio social en Avda. de Burgos 12, 28036 Madrid y CIF número B88178694, inscrita en el Registro Mercantil de Madrid al tomo 38172, folio 50, hoja M-679225.
Comercializador: Servihabitat Servicios Inmobiliarios, S.L.U., con domicilio en la Avenida de Burgos, 12, 28036 Madrid, inscrita en el Registro Mercantil de Madrid, Tomo 37153, Folio 143, Hoja M-663089.
Tu cuenta
Entra con tu email y contraseña para tener acceso directo a tu cuenta:
Tu cuenta
Entra con tu email y contraseña para tener acceso directo a:
Accede para disfrutar de las ventajas de ser usuario registrado:
Tu perfil
Tus favoritos
Tus búsquedas guardadas
¿Eres usuario particular? Accede como particular
Tu cuenta
Entra en tu cuenta y aprovecha todas las ventajas de guardar tus inmuebles favoritos.
Accede para disfrutar de las ventajas de ser usuario registrado:
Marca tus inmuebles favoritos
Te informaremos si bajan de precio
Añade notas y comentarios
Te avisaremos si se dan de baja
¿Eres usuario particular? Accede como particular
Tu cuenta
Entra en tu cuenta y aprovecha todas las ventajas de guardar tus inmuebles favoritos.
Accede para disfrutar de las ventajas de ser usuario registrado:
Marca tus inmuebles favoritos
Te informaremos si bajan de precio
Añade notas y comentarios
Te avisaremos si se dan de baja
Tu cuenta
Para disfrutar del Dosier Comercial regístrate en Servihabitat. Además, desde tu cuenta podrás gestionar:
Tu perfil
Tus favoritos
Tus búsquedas guardadas
¿Eres usuario particular? Accede como particular
Tu cuenta
¿Eres usuario particular? Accede como particular
Sobre tu privacidad
Utilizamos cookies propias y de terceros para fines analíticos y mejorar la funcionalidad de nuestra web y/o mostrarle contenidos personalizados en base al perfil que hemos elaborado en función de sus hábitos de navegación. Al pulsar en “Aceptar todas” se entiende que ha sido informado y acepta la instalación y uso de todas las cookies seleccionadas. Puede pulsar “Configurar Cookies” para configurar o rechazar las cookies. Para más información o deshabilitar las cookies en cualquier momento visite nuestra Política de cookies.
Configura las cookies
¿Qué son las cookies?
Cualquier sitio web que visites puede almacenar o recuperar información en tu navegador, principalmente a través de las cookies. Esta información puede ser sobre ti, tus preferencias o tu dispositivo y se utiliza pricipalmente para hacer que el sitio funcione como esperas que lo haga. La información no suele identificarte directamente, pero sí puede ofrecerte una experiencia web más personalizada. Respetamos tu derecho a la intimidad, de modo que puedes negarte a admitir determinados tipos de cookies. Haz clic en los diferentes títulos de las categorías para obtener más información y cambiar nuestra configuarción predeterminada. Sin embargo, bloquear algunos tipos de cookies puede afectar a tu experiencia con el sitio y los servicios que te podemos ofrecer.
Optando por "Guardar selección" sin haber seleccionado ninguna cookie, quedarán rechazadas cookies distintas a las necesarias.
Cookies técnicas
Estas cookies permiten las funciones básicas y son necesarias para el correcto uso de la página web, en tanto que permite navegación en la página y utilizar las diferentes opciones o servicios que tiene. Con ellas podemos, por ejemplo, identificarte durante la sesión, darte acceso a partes de acceso restringido, y utilizar elementos de seguridad durante tu navegación.
Cookies de preferencias
Estas cookies permiten la experiencia del usuario y almacenar sus preferencias. Por ejemplo, son aquellas cookies que guardan tus preferencias de búsqueda del sitio.
Cookies de medición
Estas cookies permiten contar las visitas y las fuentes de tráfico para poder medir y mejorar el rendimiento de la página web. Usamos estas cookies a fin de mejorar el servicio ofrecido a los usuarios. Toda la información recogida por estas cookies es agregada y, por lo tanto, anónima.
Cookies de publicidad
Estas cookies de nuestros socios publicitarios se utilizan para poder ofrecerle publicidad que pueda ser de su interés, para poder recibir mensajes personalizados y compartir sus datos con las herramientas publicitarias de Google. En caso de no haber aceptado estas cookies, los anuncios seguirán mostrándose, pero dejarán de estar personalizados.
Otros inmuebles similares en la zona de Costa Del Sol Occidental
290.000 €
Piso en venta en C. Mar Cantábrico, 9, Mijas, Málaga
- 94m2
- 2hab.
- 2baños
99.000 €
Casa en venta en C. Monte, 40-B, Casares, Málaga
- 96m2
240.000 €
Piso en venta en C. Casas Del Duque - Residencial Jardines De Manilva, 1, Manilva, Málaga
- 100m2
- 2hab.
- 2baños
795.000 €
Dúplex en venta en C. Incosol-Ur Golf Rio Real, 7, Marbella, Málaga
- 445m2
- 3hab.
- 3baños
470.000 €
Piso en venta en C. Adelfas, 18, Marbella, Málaga
- 122m2
- 2hab.
- 2baños
Incluye otros inmuebles
295.000 €
Vivienda en venta en Urb. Princesa Kristina, 285, Manilva, Málaga
- 201m2
- 3hab.
- 3baños
Otros inmuebles similares en la provincia de Málaga
67.500 € 68.900 €
Casa en venta en C. Aguayar, 11, Benadalid, Málaga
- 88m2
- 2hab.
- 1baño
142.000 €
Piso en venta en C. Ingeniero Diaz Petersen, 7, Malaga, Málaga
- 49m2
- 2hab.
- 1baño
49.000 €
Casa en venta en Pre. La Parrilla, 71, Villanueva De Algaidas, Málaga
- 172m2
- 1hab.
- 1baño