1 inmueble disponible en Urbanizable en transformación en venta en pre. p.parc.sub-ar3, s/n, Alcala Del Rio
390.000 €
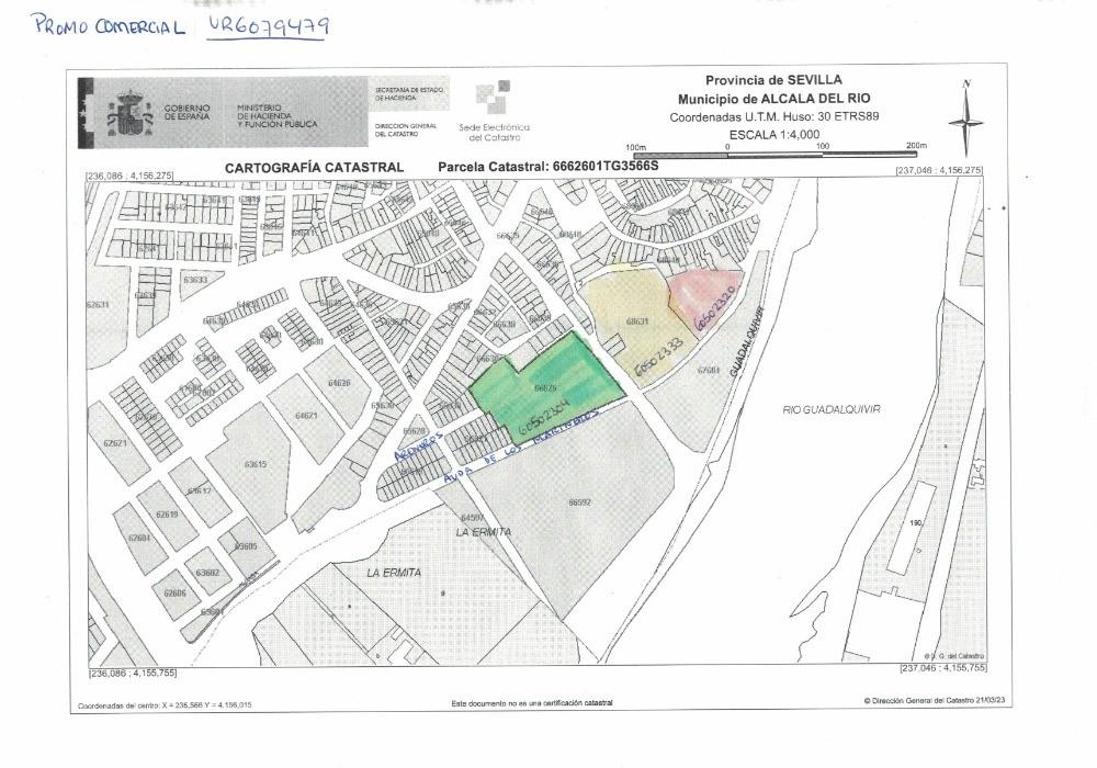
Terreno urbanizable en transformación en venta en pre. p.parc.sub-ar3, s/n, Alcala Del Rio, Sevilla
Comparativa con zona
Precio €/m2: -14%
Superficie m2: +53%
Características
- 10.786 m2 superficie
- Unifamiliar
- Sectorizado
- Clasificación urbanística: Suelo urbanizable sectorizado
- Sector PGOU: SUB-AR3
- Referencia Catastral: 6662601TG3566S0001IP
- Uso principal o mayoritario: Residencial ,
- Edificabilidad Total s/r: 4.854 m2
- Edificabilidad de uso mayoritario: 4.854 m2
- Tipología edificatoria: CASA ADOSADA
- % participación en el ámbito: 43,74 %
- Proyecto de urbanización: PENDIENTE
- Proyecto de reparcelación: PENDIENTE
Este inmueble se comercializa conjuntamente con:
Inmuebles independientes que están incluidos en el precio total.
Notas
Añade una nota a este inmueble...
Nota actualizada el a las
Descripción
Amplio terreno urbano ideal para la edificación de viviendas.
Ubicado en una zona totalmente consolidada dela ciudad, cerca del Río Guadalquivir, de varias superficies comerciale y cerca del Peñón de Alcázar.
Descargas
Ubicación del inmueble
Pre. P.parc.sub-Ar3, S/n, Alcala Del Rio, Sevilla
Que no te lo quiten
Visto por 43 personas este mes.
Sé uno de los primeros en contactar.
Guardado como favorito por 6 personas.
Municipio: alcala del rio
Provincia: Sevilla
N.º de habitantes: 11.813
Superficie: 81,88 km2
Alcalá del Río es un municipio andaluz situado en la provincia de Sevilla, más concretamente 8 Km al Norte de la capital provincial y en la comarca de la Vega del Guadalquivir. El principal motor económico de la ciudad es la agricultura junto con los servicios, aunque también podamos encontrar un polígono industrial al Norte del municipio. Es el último tramo navegable del río Guadalquivir, debido a que se encuentra el embalse de Alcalá del Río. Destacan del patrimonio municipal la iglesia de Santa María de la Asunción y la capilla de San Gregorio de Osset.
- Habitantes: 11.813
- Número de hogares: 5.050
- Edad media de las personas: 37 años
- % extranjeros: 0%
- Nivel medio de estudios: Secundaria
- % dedicadas a segunda residencia: 5%
- Nº de hoteles por cada 1.000 habitantes residentes: 0,3
- Número de farmacias: 9
- Número de escuelas de primaria: 9
- Número de escuelas de secundaria: 1
- Número de estaciones ferrocarril: 1
Urbanizable en transformación en venta en Pre. P.parc.sub-Ar3, S/n Alcala Del Rio, Sevilla
390.000 €
Solicitud enviada
Recibirás un email con los datos de contacto de tu asesor para que puedas agendar una visita al inmueble.
Por favor, si no te llega, revisa las bandejas de SPAM y promociones de tu correo.
Nos gustaría conocer tus preferencias.
Inmueble de promoción conjunta
Cuidado, estás dejando tu petición de información en una promoción formada por más de un activo, revisa la ficha de este producto antes de solicitar información.
Inmueble tipología Obra Parada y en promoción conjunta
Importante: estás dejando tu petición de información sobre una estructura pendiente de finalizar que se comercializa completa y destinada a perfil inversor / promotor. Es una promoción formada por más de un activo, revisa la ficha de este producto antes de solicitar información.
Inmueble tipología Obra Parada
Importante: estás dejando tu petición de información sobre una estructura pendiente de finalizar que se comercializa completa y destinada a perfil inversor / promotor.
Vivienda sin posesión
No hay posibilidad de visitar este inmueble ni de financiarlo.
¿Confirmas que estás interesado en esta tipología de activos destinados a público inversor?
Inmueble proindiviso
Importante: este activo es un proindiviso, cuya propiedad corresponde a varias personas, cada una de las cuales ostentará únicamente un porcentaje determinado sobre la propiedad del inmueble.
¿Confirmas que estás interesado en esta tipología de activos?
¡Gracias por contactar!
Recibirás un email con los datos de contacto de tu asesor para que puedas agendar una visita al inmueble.
Por favor, si no te llega, revisa las bandejas de SPAM y promociones de tu correo.
Propietario del inmueble
Actualizado el 23/07/2024
Términos y condiciones
La información contenida en esta página web está sujeta a actualizaciones sin previo aviso, por lo cual se debe conformar en cada caso a través del 942 049 000. Los precios no incluyen impuestos y gastos a cargo del comprador. Los productos anunciados pueden estar en trámite de inscripción en el Registro de la Propiedad.
Toda la información referida en el R.D. 515/1989, de 21 de abril, sobre protección de los consumidores en cuanto a la información a suministrar en la compraventa y arrendamiento de viviendas, la normativa autonómica complementaria, el R.D. 390/2021, de 1 junio, sobre certificación energética de los edificios, y la demás legislación aplicable se encuentra a disposición de los usuarios en nuestras oficinas en Avenida de Burgos 12, 28036 Madrid. Todos los productos anunciados en esta web los comercializa Servihabitat.
Datos del propietario y comercializador
Inmueble propiedad de Coral Homes, S.L., sociedad con domicilio social en Avda. de Burgos 12, 28036 Madrid y CIF número B88178694, inscrita en el Registro Mercantil de Madrid al tomo 38172, folio 50, hoja M-679225.
Comercializador: Servihabitat Servicios Inmobiliarios, S.L.U., con domicilio en la Avenida de Burgos, 12, 28036 Madrid, inscrita en el Registro Mercantil de Madrid, Tomo 37153, Folio 143, Hoja M-663089.
Condiciones promocionales
DESTINATARIOS DE LA COMERCIALIZACIÓN DEL INMUEBLE Y TRIBUTACIÓN DE LA COMPRAVENTA EN CASO DE ACEPTACIÓN DE LA OFERTA: El ofertante declara conocer que la comercialización y venta del inmueble objeto de la presente Oferta está condicionada a que la tributación de la transmisión del objeto de ésta quede, bajo cualquier circunstancia, sujeta y no exenta de IVA / IGIC. Como consecuencia de lo anterior, el Ofertante realiza y asume las declaraciones y compromisos siguientes: I. En el caso de segundas entregas de edificaciones y terrenos no edificables (exceptuando los que se encuentran en curso de urbanización), el Ofertante declara que es empresario profesional y que, en relación con la adquisición del inmueble, cumple los requisitos legales para acogerse a la renuncia a la exención del IVA / IGIC prevista en la normativa vigente. La venta de terrenos que tengan la condición de edificables (solar o cualquier otro terreno con licencia administrativa para edificar) así como la venta de terrenos en curso de urbanización cuya ejecución material sehalle iniciada, quedará inexorablemente sujeta a IVA/IGIC, con independencia de la condición del adquirente. II. Que, para el casode que la presente Oferta resulte aceptada (de conformidad con lo establecido en el apartado #Aceptación de la oferta por Servihabitat Servicios Inmobiliarios S.L.U. y sus efectos#), si se tratase de una segunda transmisión el Ofertante se compromete y obliga a acogerse a la renuncia a la exención del IVA / IGIC en el momento de otorgar escritura de compraventa. Como consecuencia de lo anterior, el Ofertante declara conocer y aceptar que la compraventa del inmueble quedará sujeta y no exenta de IVA / IGIC. III. Que en caso de que el Ofertante incumpla por cualquier circunstancia el compromiso manifestado en los apartados anteriores, el Propietario tendrá derecho a resolver la presente Oferta haciendo suya la cantidad entrega por el Ofertante en virtud de la Oferta o de las arrasen caso de ha berse suscrito las mismas de conformidad con lo establecido en el apartado #Aceptación de la oferta por Servihabitat Servicios Inmobiliarios S.L.U. y sus efectos# del presente documento. IV. El Ofertante declara conocer y aceptar que las manifestaciones y compromisos estipulados en los apartados (i) a (iii) constituyen una condición esencial para la aceptación de la presente Oferta.Tu cuenta
Entra con tu email y contraseña para tener acceso directo a tu cuenta:
Tu cuenta
Entra con tu email y contraseña para tener acceso directo a:
Accede para disfrutar de las ventajas de ser usuario registrado:
Tu perfil
Tus favoritos
Tus búsquedas guardadas
¿Eres usuario particular? Accede como particular
Tu cuenta
Entra en tu cuenta y aprovecha todas las ventajas de guardar tus inmuebles favoritos.
Accede para disfrutar de las ventajas de ser usuario registrado:
Marca tus inmuebles favoritos
Te informaremos si bajan de precio
Añade notas y comentarios
Te avisaremos si se dan de baja
¿Eres usuario particular? Accede como particular
Tu cuenta
Entra en tu cuenta y aprovecha todas las ventajas de guardar tus inmuebles favoritos.
Accede para disfrutar de las ventajas de ser usuario registrado:
Marca tus inmuebles favoritos
Te informaremos si bajan de precio
Añade notas y comentarios
Te avisaremos si se dan de baja
Tu cuenta
Para disfrutar del Dosier Comercial regístrate en Servihabitat. Además, desde tu cuenta podrás gestionar:
Tu perfil
Tus favoritos
Tus búsquedas guardadas
¿Eres usuario particular? Accede como particular
Tu cuenta
¿Eres usuario particular? Accede como particular
Sobre tu privacidad
Utilizamos cookies propias y de terceros para fines analíticos y mejorar la funcionalidad de nuestra web y/o mostrarle contenidos personalizados en base al perfil que hemos elaborado en función de sus hábitos de navegación. Al pulsar en “Aceptar todas” se entiende que ha sido informado y acepta la instalación y uso de todas las cookies seleccionadas. Puede pulsar “Configurar Cookies” para configurar o rechazar las cookies. Para más información o deshabilitar las cookies en cualquier momento visite nuestra Política de cookies.
Configura las cookies
¿Qué son las cookies?
Cualquier sitio web que visites puede almacenar o recuperar información en tu navegador, principalmente a través de las cookies. Esta información puede ser sobre ti, tus preferencias o tu dispositivo y se utiliza pricipalmente para hacer que el sitio funcione como esperas que lo haga. La información no suele identificarte directamente, pero sí puede ofrecerte una experiencia web más personalizada. Respetamos tu derecho a la intimidad, de modo que puedes negarte a admitir determinados tipos de cookies. Haz clic en los diferentes títulos de las categorías para obtener más información y cambiar nuestra configuarción predeterminada. Sin embargo, bloquear algunos tipos de cookies puede afectar a tu experiencia con el sitio y los servicios que te podemos ofrecer.
Optando por "Guardar selección" sin haber seleccionado ninguna cookie, quedarán rechazadas cookies distintas a las necesarias.
Cookies técnicas
Estas cookies permiten las funciones básicas y son necesarias para el correcto uso de la página web, en tanto que permite navegación en la página y utilizar las diferentes opciones o servicios que tiene. Con ellas podemos, por ejemplo, identificarte durante la sesión, darte acceso a partes de acceso restringido, y utilizar elementos de seguridad durante tu navegación.
Cookies de preferencias
Estas cookies permiten la experiencia del usuario y almacenar sus preferencias. Por ejemplo, son aquellas cookies que guardan tus preferencias de búsqueda del sitio.
Cookies de medición
Estas cookies permiten contar las visitas y las fuentes de tráfico para poder medir y mejorar el rendimiento de la página web. Usamos estas cookies a fin de mejorar el servicio ofrecido a los usuarios. Toda la información recogida por estas cookies es agregada y, por lo tanto, anónima.
Cookies de publicidad
Estas cookies de nuestros socios publicitarios se utilizan para poder ofrecerle publicidad que pueda ser de su interés, para poder recibir mensajes personalizados y compartir sus datos con las herramientas publicitarias de Google. En caso de no haber aceptado estas cookies, los anuncios seguirán mostrándose, pero dejarán de estar personalizados.
Otros inmuebles similares en la zona de Aljarafe
390.000 €
Urbano para construir en venta en C. La Habana, S/n, Alcala Del Rio, Sevilla
- 5.168m2
59.500 €
Urbanizable en transformación en venta en P.p.sr 2.manz 5 Parcelas 1 A 5, Villanueva Del Ariscal, Sevilla
- 620m2
57.500 €
Urbano no consolidado en venta en Unidad De Ejecucion Uno La Sabina Plan Parcial R1a, 2, Bollullos De La Mitacion, Sevilla
- 2.311m2
224.900 €
Urbano no consolidado en venta en C. Antonio Machado, 10, Palomares Del Rio, Sevilla
- 3.426m2
Otros inmuebles similares en la provincia de Sevilla
120.800 €
Rústico en venta en Pre. Isla De La Cobatilla Y El Villar, Herrera, Sevilla
- 12.977m2
90.000 €
Urbano para construir en venta en C. Ortega Y Gasset, 96, Sevilla, Sevilla
- 418m2
17.500 €
Urbanizable en transformación en venta en C. Arroyo Garnacha, 3, Gerena, Sevilla
- 310m2
55.000 €
Urbano para construir en venta en Ulpiano Blanco, 26, Sevilla, Sevilla
- 117m2
13.900 €
Urbano no consolidado en venta en C. Suecia, Burguillos, Sevilla
- 539m2
425.000 €
Urbano no consolidado en venta en Ar-2 Barranquillo, Carmona, Sevilla
- 1.837m2