Piso en venta en c. real de san fernando, 58, Martos, Jaén
Comparativa con zona
Precio €/m2: -23%
Características
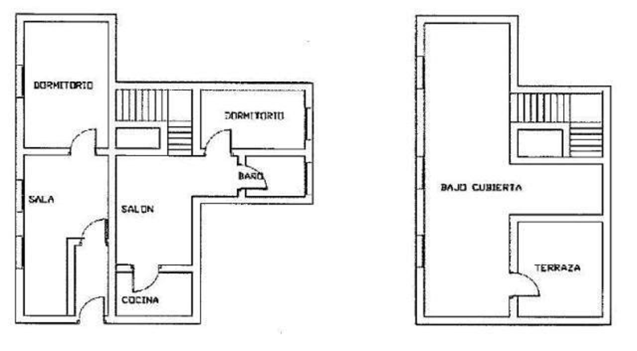
- 108 m2 superficie
- Construido en 1979
- 1 baño
- 2 habitaciones
- Terraza
- Exterior
- 100 % construido
- Sin ascensor
Finca
- 2 m de altura del piso sobre rasante
Certificado Energético
312 kW/m2 Año
81 kg CO2/m2 Año
¿Qué es el Certificado Energético?
Es un documento que evalúa la eficiencia energética de una vivienda. Con este certificado, se emite una etiqueta energética que califica el consumo de energía de la casa.
Certificado de este inmueble
¿Cómo se lee la etiqueta energética?
La etiqueta se divide en tres columnas:
Columna izquierda: Escala de letras. La A se asigna a las viviendas más eficientes y la G a las que menos.
Columna central: El número que aparece en esta columna refleja el consumo de energía (kWh/m2/año).
Columna derecha: El número de esta columna se refiere a las emisiones de dióxido de carbono (kg/CO2/año).
¿Quién otorga el Certificado de eficiencia energética?
El certificado de eficiencia energética puede ser emitido por un técnico certificador habilitado que tenga la formación adecuada para ello.
Notas
Añade una nota a este inmueble...
Nota actualizada el a las
Descripción
Dúplex distribuido en 2 habitaciones, 1 baño, salón, sala y terraza. Situado en la zona antigua del centro del pueblo, en la principal calle de acceso que conduce directamente al Ayuntamiento. Infórmate sin compromiso.
Descargas
Ubicación del inmueble
C. Real De San Fernando, 58, Martos, Jaén
Que no te lo quiten
Visto por 220 personas este mes.
16 personas han contactado.
Guardado como favorito por 7 personas.
Municipio: martos
Provincia: Jaén
N.º de habitantes: 24.240
Superficie: 261,02 km2
Martos es una ciudad y municipio andaluz de la provincia de Jaén. Considerado el más importante del área metropolitana de Jaén después de la capital provincial en lo referido a la actividad económica y población. Su economía se basa principalmente en la agricultura y la industria automovilística. Tuvo un gran crecimiento la primera mitad del siglo pasado, frenada los años 50 por la emigración hacia zonas de España con más oferta laboral. Actualmente la población está experimentando un crecimiento demográfico notable, gracias a la importancia de la industria del municipio.
- Habitantes: 24.240
- Número de hogares: 12.716
- Edad media de las personas: 40 años
- % extranjeros: 1%
- Nivel medio de estudios: Secundaria
- % dedicadas a segunda residencia: 8%
- Nº de hoteles por cada 1.000 habitantes residentes: 0,2
- Número de parques urbanos: 1
- Número de farmacias: 13
- Número de escuelas de primaria: 13
- Número de escuelas de secundaria: 5
- Número de estaciones ferrocarril: 2
Piso en venta en C. Real De San Fernando, 58 Martos, Jaén
12.000€
Hipotecas desde:
30,88 €
/mes
Ref. 60511827
Solicitud enviada
Recibirás un email con los datos de contacto de tu asesor para que puedas agendar una visita al inmueble.
Por favor, si no te llega, revisa las bandejas de SPAM y promociones de tu correo.
Nos gustaría conocer tus preferencias.
Inmueble de promoción conjunta
Cuidado, estás dejando tu petición de información en una promoción formada por más de un activo, revisa la ficha de este producto antes de solicitar información.
Inmueble tipología Obra Parada y en promoción conjunta
Importante: estás dejando tu petición de información sobre una estructura pendiente de finalizar que se comercializa completa y destinada a perfil inversor / promotor. Es una promoción formada por más de un activo, revisa la ficha de este producto antes de solicitar información.
Inmueble tipología Obra Parada
Importante: estás dejando tu petición de información sobre una estructura pendiente de finalizar que se comercializa completa y destinada a perfil inversor / promotor.
Vivienda sin posesión
No hay posibilidad de visitar este inmueble ni de financiarlo.
¿Confirmas que estás interesado en esta tipología de activos destinados a público inversor?
Inmueble proindiviso
Importante: este activo es un proindiviso, cuya propiedad corresponde a varias personas, cada una de las cuales ostentará únicamente un porcentaje determinado sobre la propiedad del inmueble.
¿Confirmas que estás interesado en esta tipología de activos?
¡Gracias por contactar!
Recibirás un email con los datos de contacto de tu asesor para que puedas agendar una visita al inmueble.
Por favor, si no te llega, revisa las bandejas de SPAM y promociones de tu correo.
Propietario del inmueble
Actualizado el 01/12/2025
Términos y condiciones
La información contenida en esta página web está sujeta a actualizaciones sin previo aviso, por lo cual se debe conformar en cada caso a través del 942 049 000. Los precios no incluyen impuestos y gastos a cargo del comprador. Los productos anunciados pueden estar en trámite de inscripción en el Registro de la Propiedad.
Toda la información referida en el R.D. 515/1989, de 21 de abril, sobre protección de los consumidores en cuanto a la información a suministrar en la compraventa y arrendamiento de viviendas, la normativa autonómica complementaria, el R.D. 390/2021, de 1 junio, sobre certificación energética de los edificios, y la demás legislación aplicable se encuentra a disposición de los usuarios en nuestras oficinas en Avenida de Burgos 12, 28036 Madrid. Todos los productos anunciados en esta web los comercializa Servihabitat.
Datos del propietario y comercializador
Inmueble propiedad de Coral Homes, S.L., sociedad con domicilio social en Avda. de Burgos 12, 28036 Madrid y CIF número B88178694, inscrita en el Registro Mercantil de Madrid al tomo 38172, folio 50, hoja M-679225.
Comercializador: Servihabitat Servicios Inmobiliarios, S.L.U., con domicilio en la Avenida de Burgos, 12, 28036 Madrid, inscrita en el Registro Mercantil de Madrid, Tomo 37153, Folio 143, Hoja M-663089.
Tu cuenta
Entra con tu email y contraseña para tener acceso directo a tu cuenta:
Tu cuenta
Entra con tu email y contraseña para tener acceso directo a:
Accede para disfrutar de las ventajas de ser usuario registrado:
Tu perfil
Tus favoritos
Tus búsquedas guardadas
¿Eres usuario particular? Accede como particular
Tu cuenta
Entra en tu cuenta y aprovecha todas las ventajas de guardar tus inmuebles favoritos.
Accede para disfrutar de las ventajas de ser usuario registrado:
Marca tus inmuebles favoritos
Te informaremos si bajan de precio
Añade notas y comentarios
Te avisaremos si se dan de baja
¿Eres usuario particular? Accede como particular
Tu cuenta
Entra en tu cuenta y aprovecha todas las ventajas de guardar tus inmuebles favoritos.
Accede para disfrutar de las ventajas de ser usuario registrado:
Marca tus inmuebles favoritos
Te informaremos si bajan de precio
Añade notas y comentarios
Te avisaremos si se dan de baja
Tu cuenta
Para disfrutar del Dosier Comercial regístrate en Servihabitat. Además, desde tu cuenta podrás gestionar:
Tu perfil
Tus favoritos
Tus búsquedas guardadas
¿Eres usuario particular? Accede como particular
Tu cuenta
¿Eres usuario particular? Accede como particular
Sobre tu privacidad
Utilizamos cookies propias y de terceros para fines analíticos y mejorar la funcionalidad de nuestra web y/o mostrarle contenidos personalizados en base al perfil que hemos elaborado en función de sus hábitos de navegación. Al pulsar en “Aceptar todas” se entiende que ha sido informado y acepta la instalación y uso de todas las cookies seleccionadas. Puede pulsar “Configurar Cookies” para configurar o rechazar las cookies. Para más información o deshabilitar las cookies en cualquier momento visite nuestra Política de cookies.
Configura las cookies
¿Qué son las cookies?
Cualquier sitio web que visites puede almacenar o recuperar información en tu navegador, principalmente a través de las cookies. Esta información puede ser sobre ti, tus preferencias o tu dispositivo y se utiliza pricipalmente para hacer que el sitio funcione como esperas que lo haga. La información no suele identificarte directamente, pero sí puede ofrecerte una experiencia web más personalizada. Respetamos tu derecho a la intimidad, de modo que puedes negarte a admitir determinados tipos de cookies. Haz clic en los diferentes títulos de las categorías para obtener más información y cambiar nuestra configuarción predeterminada. Sin embargo, bloquear algunos tipos de cookies puede afectar a tu experiencia con el sitio y los servicios que te podemos ofrecer.
Optando por "Guardar selección" sin haber seleccionado ninguna cookie, quedarán rechazadas cookies distintas a las necesarias.
Cookies técnicas
Estas cookies permiten las funciones básicas y son necesarias para el correcto uso de la página web, en tanto que permite navegación en la página y utilizar las diferentes opciones o servicios que tiene. Con ellas podemos, por ejemplo, identificarte durante la sesión, darte acceso a partes de acceso restringido, y utilizar elementos de seguridad durante tu navegación.
Cookies de preferencias
Estas cookies permiten la experiencia del usuario y almacenar sus preferencias. Por ejemplo, son aquellas cookies que guardan tus preferencias de búsqueda del sitio.
Cookies de medición
Estas cookies permiten contar las visitas y las fuentes de tráfico para poder medir y mejorar el rendimiento de la página web. Usamos estas cookies a fin de mejorar el servicio ofrecido a los usuarios. Toda la información recogida por estas cookies es agregada y, por lo tanto, anónima.
Cookies de publicidad
Estas cookies de nuestros socios publicitarios se utilizan para poder ofrecerle publicidad que pueda ser de su interés, para poder recibir mensajes personalizados y compartir sus datos con las herramientas publicitarias de Google. En caso de no haber aceptado estas cookies, los anuncios seguirán mostrándose, pero dejarán de estar personalizados.
Otros inmuebles similares en la zona de Metropolitana De Jaen
20.000 €
Piso en venta en C. Real, 43a, Martos, Jaén
- 70m2
- 3hab.
- 1baño
55.000 €
Casa en venta en C. Puerta De Jaen, 16, Martos, Jaén
- 424m2
- 3hab.
- 2baños
85.000 €
Piso en venta en C. La Sierra, 2, Torre Del Campo, Jaén
- 102m2
- 3hab.
- 2baños
Incluye otros inmuebles
70.000 €
Piso en venta en C. Carrera Alta, S/n, Torre Del Campo, Jaén
- 132m2
- 4hab.
- 2baños
27.000 €
Piso en venta en Paseo Obispo, 6, Valdepeñas De Jaen, Jaén
- 145m2
- 4hab.
- 1baño
24.500 €
Casa en venta en C. Granados, 24, Torre Del Campo, Jaén
- 144m2
- 3hab.
- 1baño
Otros inmuebles similares en la provincia de Jaén
23.000 €
Casa en venta en C. Alegria, 1, Jaen, Jaén
- 94m2
- 4hab.
- 1baño
36.000 €
Casa en venta en C. Molino Del Rey, 112, Villares, Los, Jaén
- 83m2
Incluye otros inmuebles
55.800 €
Casa en venta en C. Marcos Cubillo, 44, Mancha Real, Jaén
- 189m2
- 3hab.
- 3baños
23.000 €
Casa en venta en C. Calvario, 47, Pegalajar, Jaén
- 172m2
- 4hab.
- 1baño
105.000 €
Casa en venta en C. Garcia Lorca..., Villares, Los, Jaén
- 140m2
- 3hab.
- 1baño
52.000 € 53.300 €
Piso en venta en C. Baeza, 86, Bailen, Jaén
- 114m2
- 3hab.
- 2baños